Loading...
概述
GN22-12(C)型隔离开关适用于三相交流50Hz,额定电压12KV的户内装置。供高压设备的有电压 而列负荷载的情况下接通,切断或转换线路之用。
使用环境条件
海拔:不超过1000m;
周围空气温度:-30 +40;
周围环境相对湿度:日平均不大于95%;
月平均值不大于90%。地震强度不超过8级
安全场所:没有火灾,易燃,易爆,严重污秽,化学腐蚀及剧烈振动场所。
主要技术参数
|
项目
|
单位
|
数据
|
||
|
额定电压
|
KV
|
12
|
||
|
额定功率
|
Hz
|
50
|
||
|
额定电流 |
A
|
1600 200
|
2500 3150
|
|
|
额定短路耐受电流
|
KA
|
40
|
50
|
|
|
额定峰值耐受电流
|
KA
|
100
|
125
|
|
|
额定短时持续时间
|
S
|
4
|
||
|
额定绝缘水平
|
工频耐受电压
|
KV
|
极间,极对地42断开口49
|
|
|
雷电冲击耐受电压(峰值)
|
KV
|
极间,极对地75断开口85
|
||
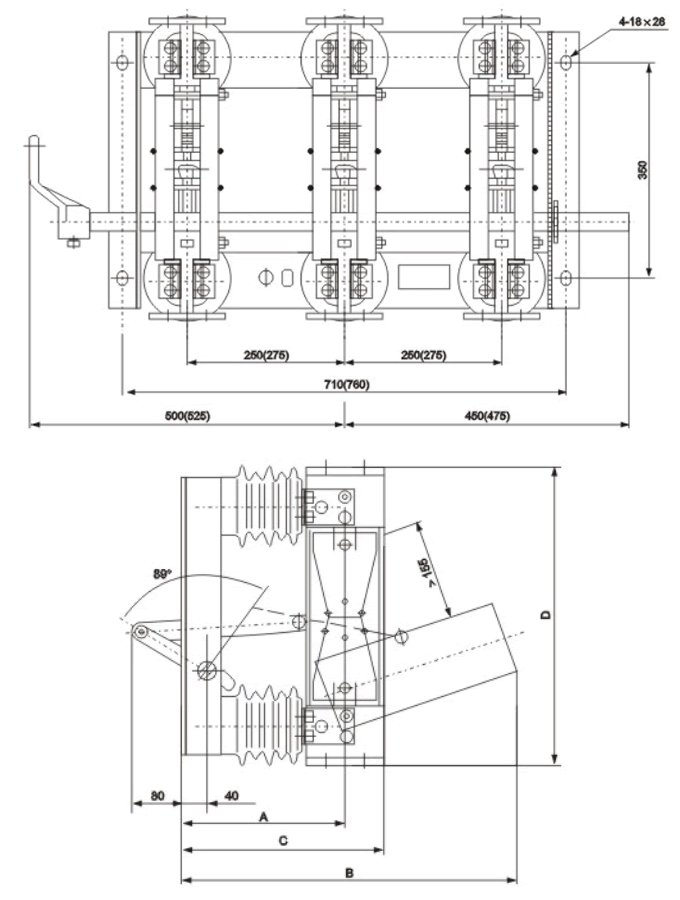
外形安装尺寸
|
型号
|
A
|
B
|
C
|
D
|
E
|
| GN22-12/1600-2000 |
255
|
305
|
527
|
490
|
50
|
| GN22-12/2500-3150 |
262
|
325
|
538
|
494
|
60
|
|
型号
|
A
|
B
|
C
|
D
|
E
|
| GN22-12C/1600-2000 |
537
|
255
|
305
|
807
|
580
|
| GN22-12C/2500-3150 |
539
|
267.5
|
330
|
880
|
630
|